Eladó családi ház Győr 104 500 000 Ft

Leírás

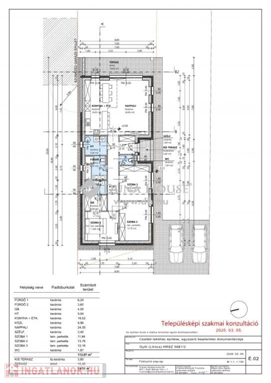
ÚJ KEZDET, ÚJ OTTHON!MODERN CSALÁDI HÁZ TERMÉSZETKÖZELI KÖRNYEZETBENOKOSOTTHON RENDSZEREK FOGADÁSÁRA ELŐKÉSZÍTVE!Képzeld el, hogy Győr egyik legnyugodtabb városrészében, Likócson indíthatod minden napod egy korszerű, modern otthonban! Ez a ház ötvözi a kényelmet, a minőséget és a természet közelségét, így ideális választás lehet számodra.MIÉRT PONT EZT AZ OTTHONT?A családi ház Likócs csendes zsákutcájában, a Duna-part közelében található. Tökéletes azoknak, akik békés környezetre vágynak, de nem szeretnének lemondani a városi infrastruktúra előnyeiről sem. Az autópálya és az ipari park gyorsan elérhető, a belváros pedig szintén könnyen megközelíthető, akár csúcsidőben is.A JELNEKOR KÖVETELMÉNYEIRE HANGOLVA!A ház kialakításánál a funkcionalitás és a természetes fény kiemelt szerepet kapott. A déli tájolású, nagy üvegfelületek világos tereket teremtenek, a fedett terasz és az erkély pedig ideális helyszínt biztosít a pihenéshez vagy családi programokhoz. FŐBB JELLEMZŐK:-Tágas lakótér: 114 m² + 19m² fedett terasz-Praktikus elosztás: nappali, 3 hálószoba, 2 fürdőszoba, gardrób és háztartási helyiség-Hőszivattyús padlófűtés.-Háromrétegű nyílászárók redőny előkészítéssel.-Tégla falazat 30 cm vastagságban 20 cm grafitos szigeteléssel. -Szeglemezes rácsos tetőszerkezet, melynek köszönhetően nincsenek főfalak így bármikor könnyen átalakítható.MIT TARTALMAZ AZ ÁR?-A telek árát-Tervezési és engedélyezési költségeket-A fűtéskész kivitelezést-Az 5% áfát-Térkövezett dupla gépkocsibeállót és járdát, térkövezett teraszt.-Csapadékvíz elvezetést szikkasztóban-Az ingatlan első éves biztosítási díját -Loxone intelligens otthon megoldások 1 millió Ft értékben. TOVÁBBI LEHETŐSÉGEK:-Kulcsrakész kivitelezés-Mennyezethűtés, klíma telepítés.-Árnyékolástechnika (redőny, zsaluzia)-Kerítés- és kertépítés, medencetelepítés.-Belsőépítészeti tanácsadás, látványtervezésTökéletes választás azok számára, akik egy korszerű, komfortos és természetközeli otthonra vágynak. Kifejezetten ajánlott azoknak, akik értékelik az innovatív megoldásokat, és fontos számukra, hogy ingatlanuk értéke hosszú távon is megmaradjon. HÍVJ! MUTATOM!Az ingatlan 207 m2-es kétszintes, 4 szoba+nappalis kivitelben is választható, dupla garázzsal, fedett terasszal és erkéllyel.

Referencia szám: HZ095908

Családi ház részletei

Ár: 104 500 000 Ft
Méret: 121 négyzetméter
Azonosító: 11527753
Irodai azonosító: HZ095908-4932683
Telek: 538 négyzetméter
Ingatlan állapota: Épülő
Jelleg: családi ház
Építőanyag: Tégla
Fűtés jellege: Villany
Fűtés módja: Hőszivattyú
Komfort fokozat: Összkomfort
Kor: Új építésű
Szintek száma: Földszintes
Egész szobák: 4

Egyéb jellemzők

  • Garázs

Térkép